您当前的位置:首页»新闻资讯»华商时讯» 详细页

华商出品 | 新华航空食品配套用房项目

建筑设计 | 华商国际工程有限公司

建筑面积 | 29602.42m²

建成年份 | 2018年

建筑性质 | 冷库建筑

设计团队 | 钱章寅、赵彤宇、张铎、陈静、周勇、王婵君、李继晓、李斌、张伯乐等

建设单位 | 中国新华航空集团有限公司

施工单位 | 北京建工四建工程建设有限公司

项目地址 | 北京市顺义区货运北路新华航空院内

本项目定位为海航冷链物流华北区域分发中心及京津冀城市配送中心,是北京空港地区功能最全、容量最大、技术最先进的公共临空口岸型冷链基础设施。该项目引入先进设计理念,采用二氧化碳制冷系统及服务于不同目标客户群的冷冻、冷藏、恒温和多温层分区。设计理念新颖,技术创新点较多,工艺先进,造型简洁大方,软硬件水平均居于国内冷库的领先地位。

· 对场所的尊重

对于工业建筑、特别是冷库建筑而言,由于受其功能限制,建筑造型大多高大、方正、封闭,从而导致我国冷链物流建筑造型千篇一律,也导致了建筑缺乏一种场所的归属感。设计立足于此,对周边环境进行了深入的调研,试图使建筑融入场所、达到“建筑本该如此”的效果。

在建筑细部设计上,同样遵守这一原则,所有建筑造型的元素,均取自周边环境,努力使建筑物融入场地,尽量避免场所的违和感。为了防止冷库建筑对周边环境及作业人员的空间压迫感,在立面处理上,大胆的采用了玻璃幕墙及干挂石材。其材质及细部分格尽可能与现状接近并根据建筑特点进行了二次创作,努力消除冷库对环境的压迫、创造宜人的建筑外部环境,使建筑具备“场所的坚固性”。项目建成后,业主评价:“这就是我们家的冷库”,我们视之为对设计团队的最高评价。

·以人为根本、以生产为核心

在功能设计上,我们坚持“以人为根本、以生产为核心”的原则。根据建筑物的使用特点,在建筑内部,努力打造合理、完善的的物流导向、引导标识系统及建筑防撞系统。根据工作人员的行为特征及物流作业的要求,穿堂区域按照生产要求划分人行区域、作业区域以及各种标识系统,避免物流作业交叉混乱及安全事故、提高作业安全及作业效率。建筑物站台、独立柱、门、升降平台等容易受撞击的部位均设计有对应的安全防撞措施,保证作业安全。

为保证食品安全,冷库穿堂需要处于低温环境。但为了保证作业人员的舒适要求,又需要保证尽可能接近人体舒适温度。为了解决这一矛盾,我们在综合各种因素以后,将穿堂温度设计为10~15℃。同时,为了避免传统冷库穿堂单调的功能性室内环境,在穿堂内部处理上,尽可能多的设计一些富有视觉及光影变化的细节,创造出相对宜人的室内环境。体现了建筑设计对人的关怀,使得建筑更加具有生命力。

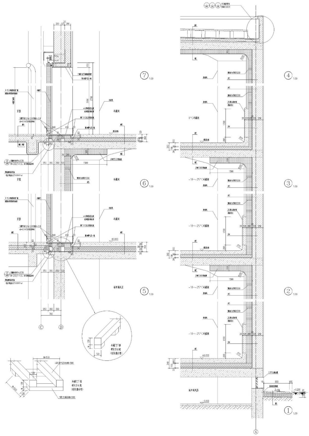
·冷库保温设计

根据冷库建筑的使用特点及业主的运营需求,对关键部位采取了特别的防止“冷桥”及防止结露的技术措施,大大降低了结构设计难度,同时使冷库具备各房间独立控制、独立运营的能力。


·其他特点

1、冷库具有10~15℃、0~10℃、0℃、-10~-15℃、-18~-25℃、-18~-25℃/0℃的复杂多温区,制冷系统采用节约、集约化设计。

2、制冷系统采用先进、集约的氟利昂-二氧化碳复叠系统。使用的载冷剂是天然制冷剂,属于自然物质,破坏臭氧潜值ODP=0,全球变暖潜值GWP=1,对大气层不会造成任何破坏。把氟利昂的使用量降到了最低,减少了因氟利昂泄露造成的温室效应,增加了生产的安全性。

3、高温冷库采用变频螺杆并联机组,低温冷库采用低温变频螺杆并联机组,冷融霜系统采用了热氟融霜系统,通过多种先进技术的使用,大大降低投资与运营费用。

4、采用冷风机配合织物风道送风,采用织物风道可以改变气流组织,使冷库内的气流组织更加合理,降温更加均匀,消除冷间内的降温死角。

5、制冷机房屋顶蒸发式冷凝器的循环水的循环环节利用消防水池。冬季由于蒸发冷水盘可能会结冰,本设计在冬季运行时,冷却水回到消防水池,经循环泵加压在输送至蒸发冷,完成热交换的过程。

6、在大空间冷库内采用满足食品安全要求的LED灯达到相同的照度要求。

7、地下室设置变配电间、雨水收集系统并采取防止结露的措施,节约用地、节约资源。